13 John Shaw Close, South West Rocks, NSW 2431

South West Rocks

$435,000

Now Nearing Completion

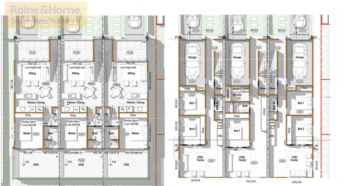
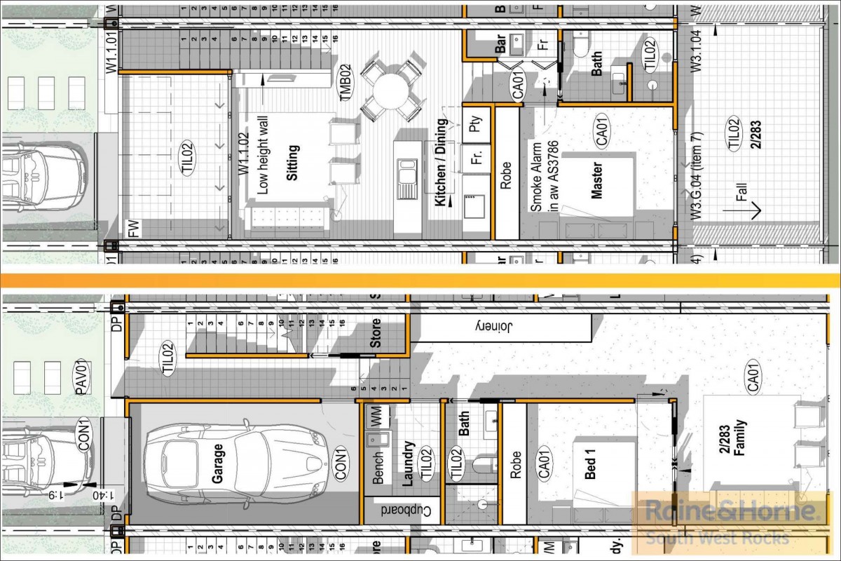
Your brand new spacious two bedroom terrace home is almost ready for you to move into. It boasts open free flowing plan with large open living spaces and private balconies. The main bedroom has a large ensuite and all bedrooms have built in wardrobes. Throughout the home you will find, 9 foot high ceilings, ducted air-conditioning and stylish modern, appliances. All of this located an easy 10 minute walk to shops and beaches. Why not request and inspection today with a view to securing your brand new home now.

Property Links

Location

Property Snapshot

Property Features

Property ID 20336515

Bedrooms 2

Bathrooms 2

Garage 1

Property Contact

Your Details
Your Enquiry
  1. Please describe how we can be of assistance to you.

  2.  

    Would you like to join our mail list?

Submit